Vračar, Vardarska ugao sa Marulićevom – stan od 85,11 m2, sa terasom
Vardarska, Belgrade, Serbia
Stan
Prodaja
365000€
85.11 m2
3 sobe
2 spavaće
1 kupatila
1 garaža
Spratnost 4/5
Detalji
Luksuzan stan od 85,11 m2, po strukturi 3.0 soban u završnoj fazi izgradnje se nalazi u Vardarskoj ulici, ugao sa Marulićevom ulicom, na Vračaru.
U neposrednoj blizini nalazi se više škola, osnovna škola Kralj Petar, centar za obrazovanje, fudbalski i košarkaški tereni.
Zgrada je u završnoj fazi izgradnje, očekuje se da u martu mesecu bude na 80% izgrađenosti.
Stan je na 4.spratu luksuzne zgrade koja se sastoji od 2 nivoa garaže+Pr+4+Ps. Zgrada je moderno projektovana, slobodnostojeća sa različitim strukturama stanova.
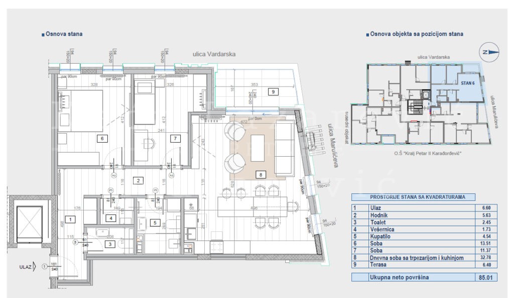
Stan se sastoji od ulaznog hodnika, dnevnog boravka sa trpezarijom i kuhinjom, dve spavaće sobe, kupatila, gostinjskog toaleta, vešernice i terase i biće opremljen najkvalitetnijom uvoznom opremom.
Zgrada će biti priključena na daljinski sistem grejanja sa liftom i luksuznim ulaznim holom.
Završetak radova i useljenje u zgradu je predviđeno za maj 2026.godine
Postoji mogućnost kupovine jednog ili više garažnih mesta po ceni od 35.000€ po garažnom mestu.
Cena stana je 365.000€ sa uračunatim PDV-om.
Agencijska provizija u skladu sa opštim uslovima poslovanja.












